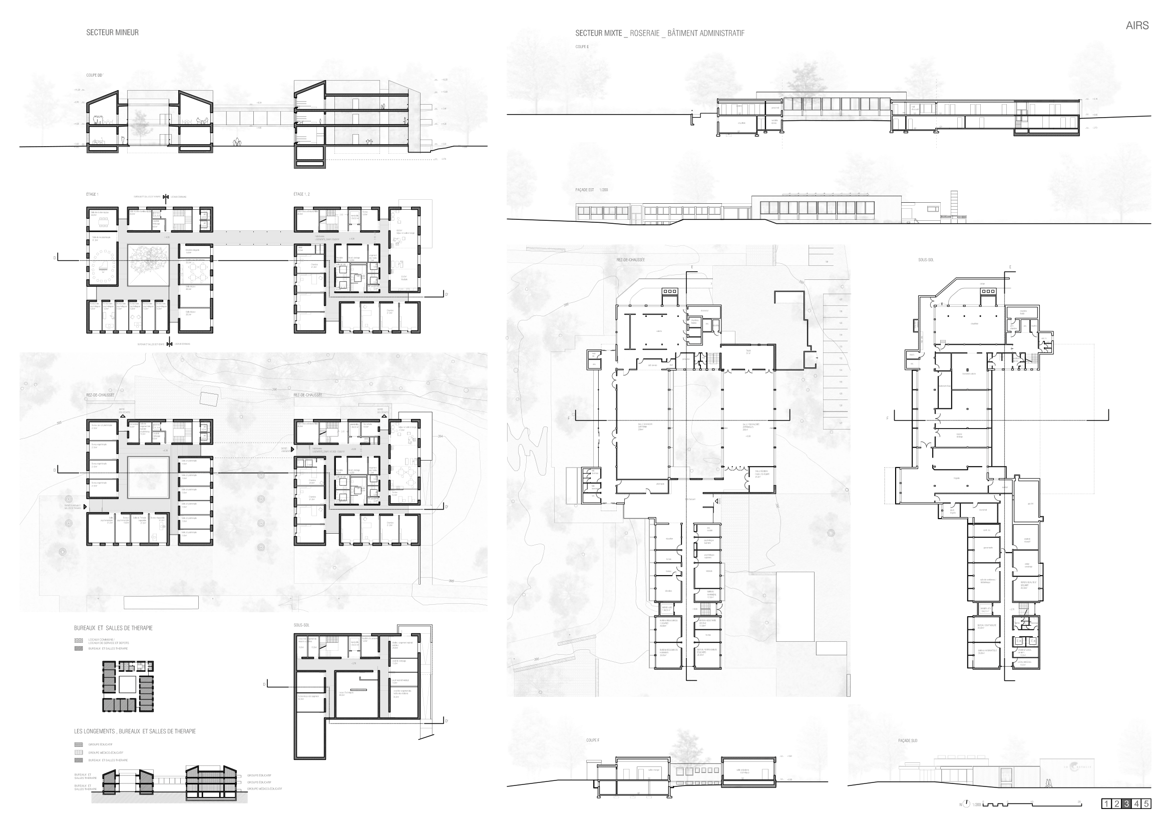
La Castalie Medical-Educational Center

This project was proposed as a solution for an architectural competition held to carry out the extension of the medical-educational center. It was developed so that there were two different zones: one for children and one for adults. This allowed to reduce commuting lenghts within the facilities. Also, the northern landscaping of the farm was expanded and improved, all without changing the scale all the buildings had, keeping its cozy look. - Chemin de Champerfou 40, 1870 Monthey, Switzerland -

Location:

Monthey, Switzerland

Date:

August 2018

Team:

Elena Guillermina Guerrero Ogando
José Manuel Guerrero Vega
Amalia Ogando Herranz
Pablo Pérez Micó
Laura Villasante Guerrero

We use cookies to ensure that we give you the best experience on our website. Click here for more information.