Swiss Embassy Nairobi

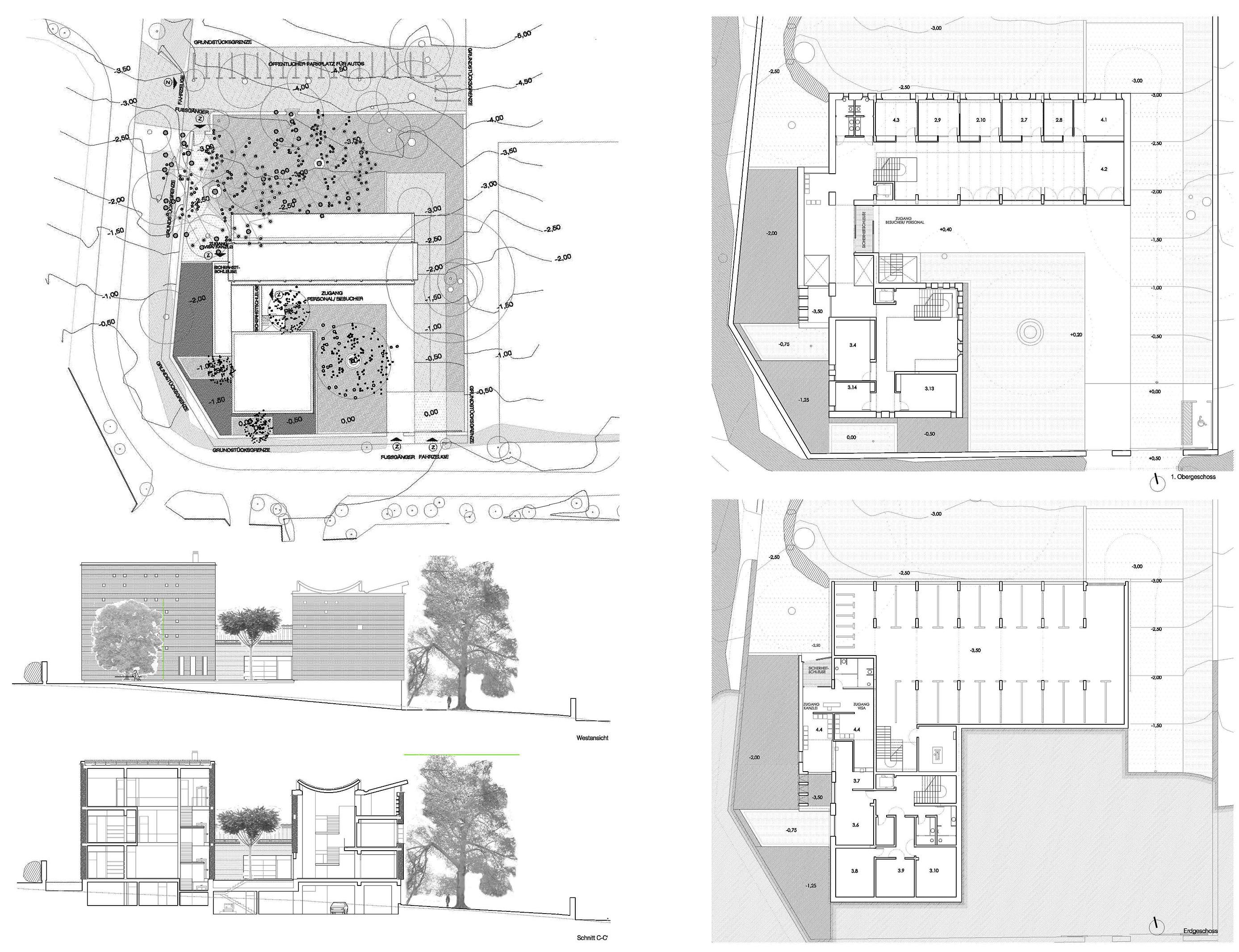
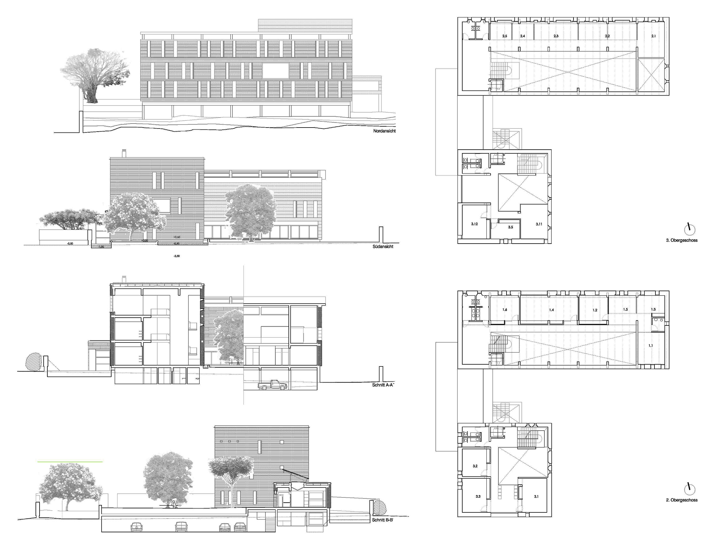
The project consists of three volumes: the diplomatic building, the chancellery and the access area which plays a special role as it is the connecting piece between the other two and allows differentiated access for staff and visitors through its different levels. One of the goals of our proposal is to preserve the largest number of existing trees and incorporate four more, two native trees and two other Swiss linden trees (symbolic for being related to freedom and dialogue). The chosen material for its construction was clay for its thermal advantages and to create a cultural connection between Swiss sustainable architecture and local construction. Other sustainable aspects of the project are the patio ponds, for managing rainwater, or the inverted vault for collecting rainwater and optimizing its angle to maximize the performance of the solar battery while at the same time creating a special interior atmosphere through filters of lights.

Location:

Nairobi, Kenya

Date:

October 2011

Team:

José Manuel Guerrero Vega
Amalia Ogando Herranz
Pablo José Pérez Micó
Elena Guillermina Guerrero Ogando

We use cookies to ensure that we give you the best experience on our website. Click here for more information.