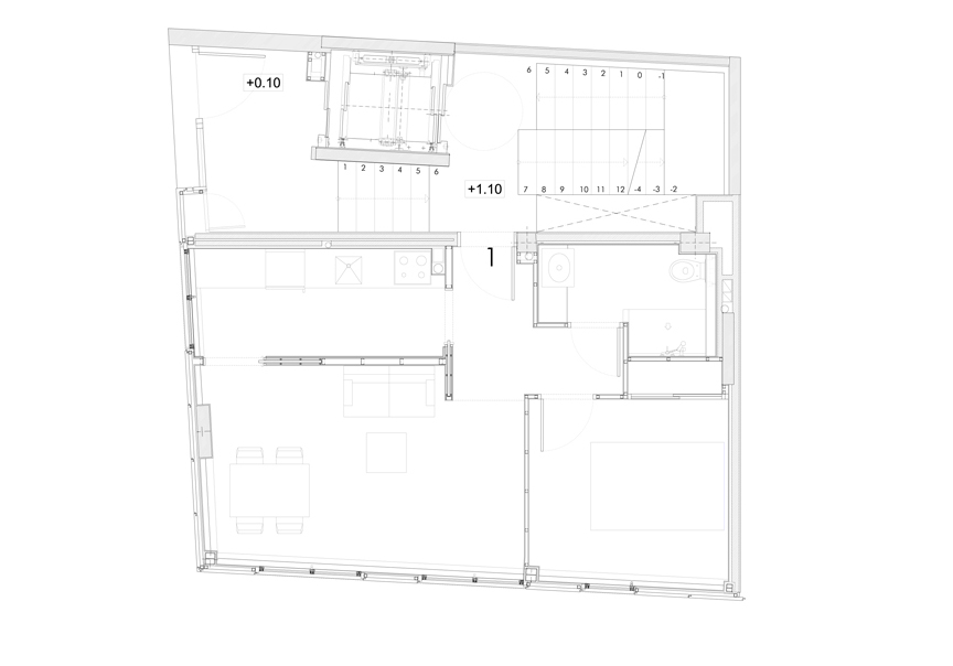
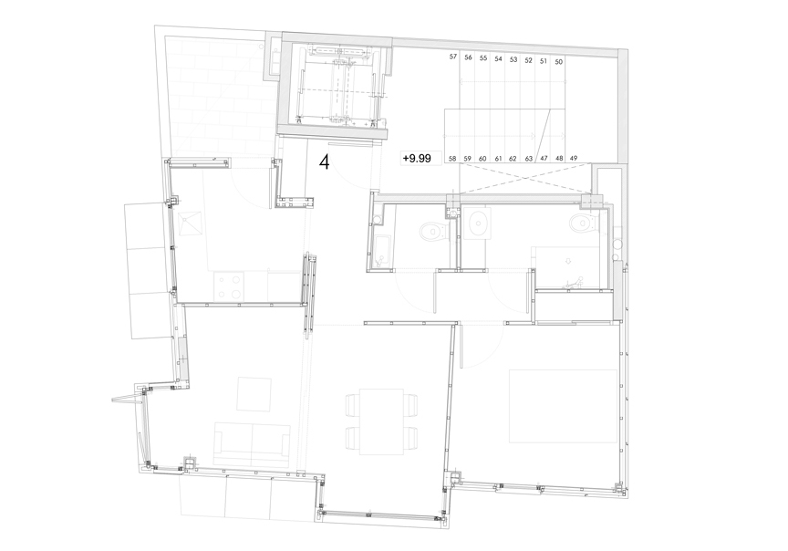
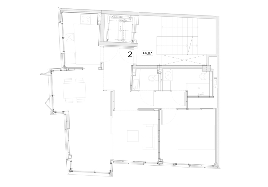
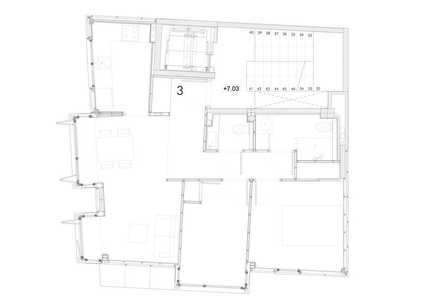
Apartment Building in Palomeras

This corner plot, located near the old town in the Vallecas neighborhood, is very limited in size, requiring an exercise of minimal architecture. The solution given to the façade, with corten-steel sandwich panels and balconies, scratches as much surface as possible from the limited dimensions of the site. The interior distribution of the apartments seeks to avoid residual spaces, while understanding that small sized apartments must be flexible and able to adapt to the changing needs of its inhabitants, especially when the purpose is to rent them. Another goal of this project was to incorporate a passive energy design with resources such as a solar chimney (which was integrated on the common staircase). The building has four floors and a semi-basement floor for storage rooms and facilities.

Location:

Madrid, Spain

Date:

November 2011

Team:

José Manuel Guerrero Vega
Amalia Ogando Herranz
Pablo José Pérez Micó
Elena Guillermina Guerrero Ogando

We use cookies to ensure that we give you the best experience on our website. Click here for more information.