House in Guadarrama

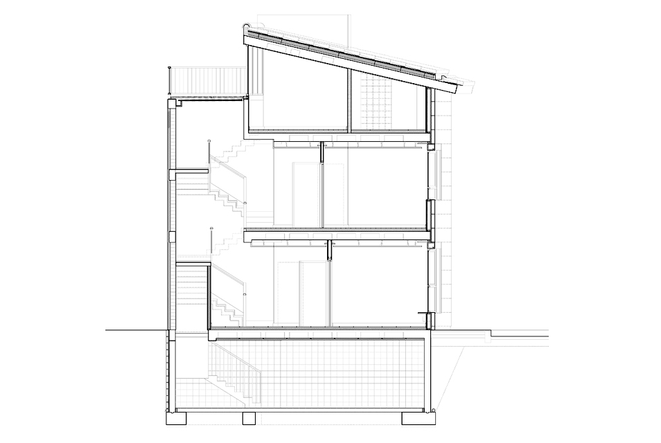
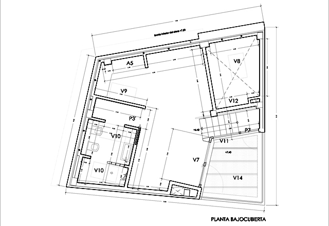
The main criteria of the project are the privacy of its inhabitants and the spatial flexibility due to the client’s demand related to living with people with reduced mobility. For this reason, spaces are designed to allow different uses, as a bedroom and as a living room. In its exterior, being a corner building, the materials have been carefully chosen as well as its volumetric relationship with the adjacent buildings. This is a particularly sensitive case as it is surrounded by protected buildings that belong to Devastated Regions. Granite from the area has been chosen as the material used for the facade. The project is developed on three levels connected to each other by a nucleus of stairs with overhead natural lighting. -Guadarrama (Madrid) Calles Dr. Federico Rubio 10 con calle de la sierra 2. -

Location:

Madrid, Spain

Date:

2006 - 2015

Team:

José Manuel Guerrero Vega
Amalia Ogando Herranz
Pablo José Pérez Micó
Elena Guillermina Guerrero Ogando

We use cookies to ensure that we give you the best experience on our website. Click here for more information.