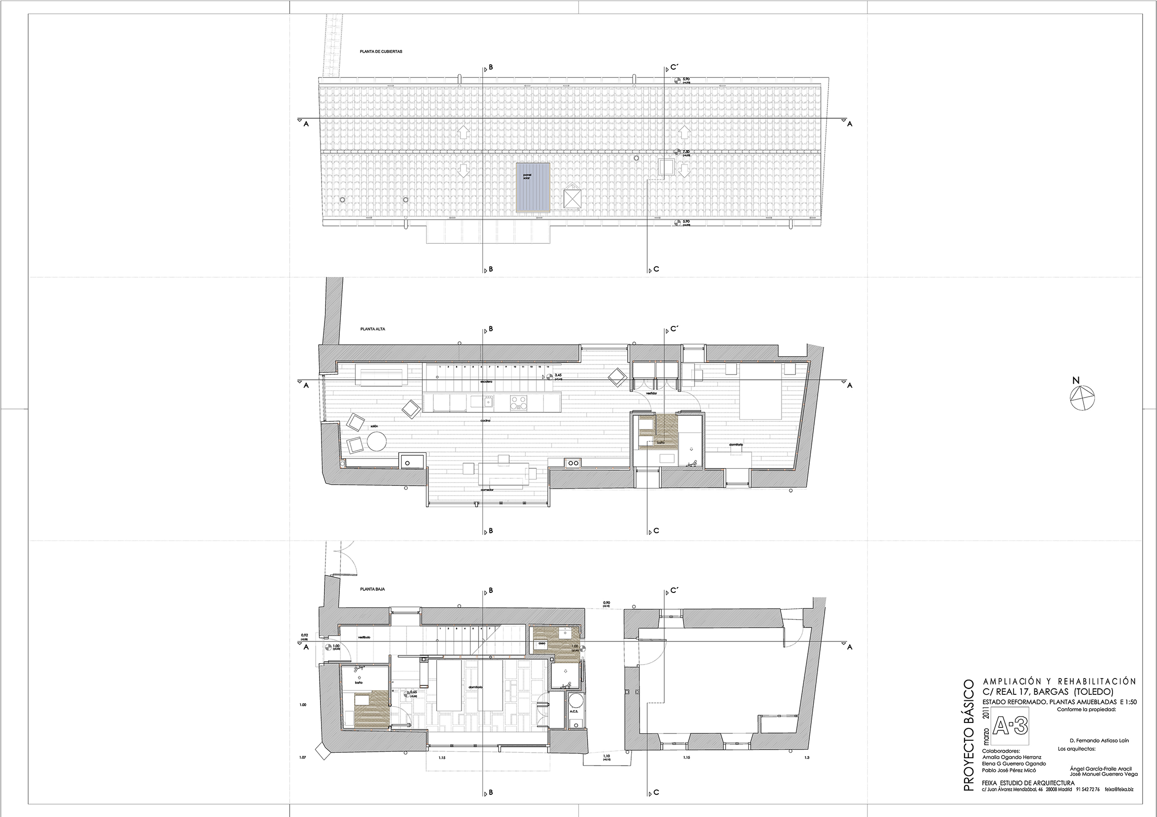
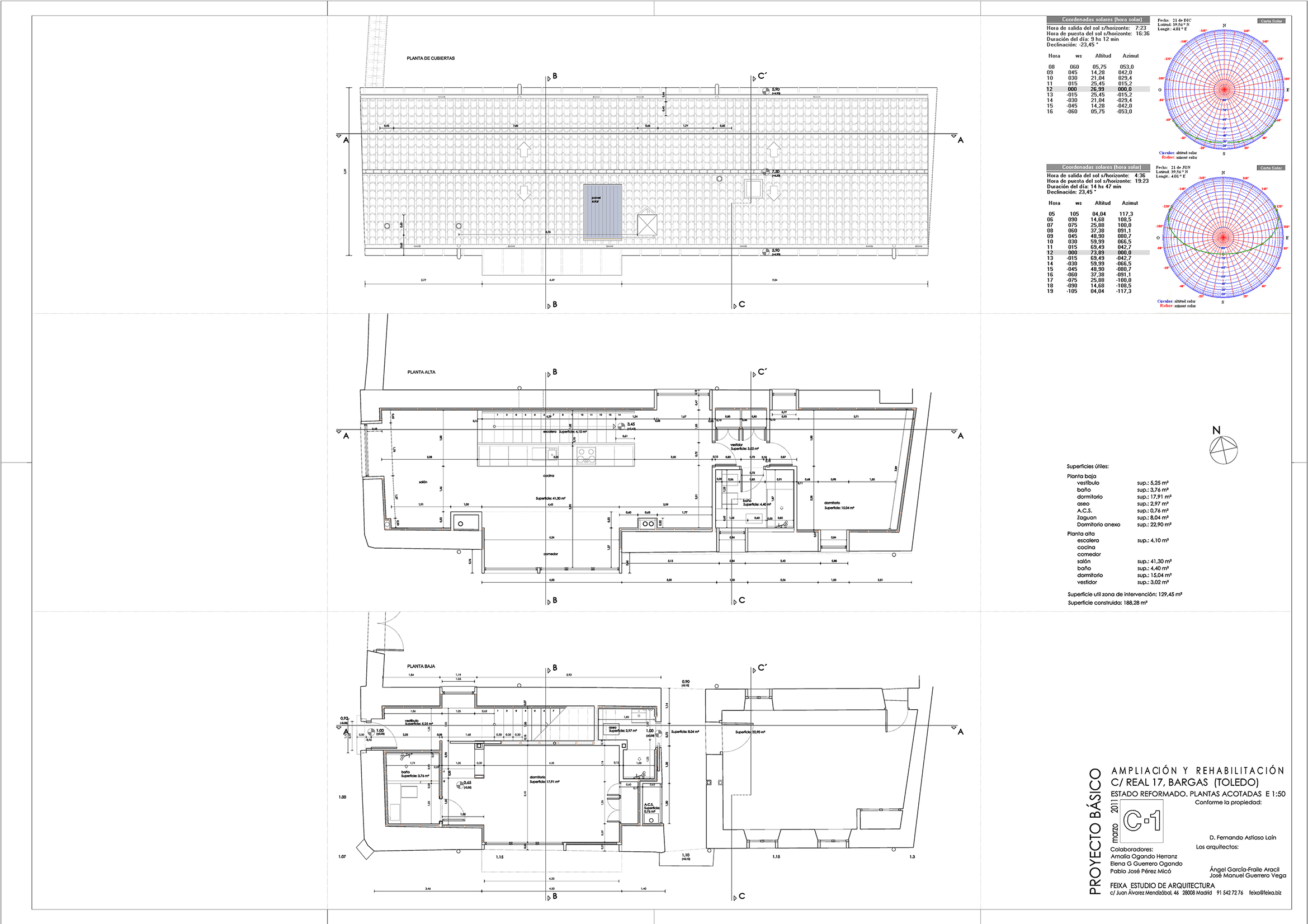
Rehabilitation of the Tapial House in Toledo

The uninhabited wing of an old mud house from the s. XIX, originally used as a warehouse, in order to become a weekend refuge for one of the owner's sons and his family. Part of the complexity of the project lies in the need to achieve functional independence from the rest of the building in a tight space, but without losing the memory of the place and the way the rest of the inhabitants have to live it. The project emphasizes the longitudinal proportion of the nave, placing the staircase in this direction and allowing to enjoy the ascent of the entire height of the house.

Location:

Toledo, Spain

Date:

2012

Team:

José Manuel Guerrero Vega
Ángel García-Fraile Aracil
Amalia Ogando Herranz
Pablo José Pérez Micó
Elena Guillermina Guerrero Ogando

We use cookies to ensure that we give you the best experience on our website. Click here for more information.