Rehabilitation of a building in calle Tomás García 2

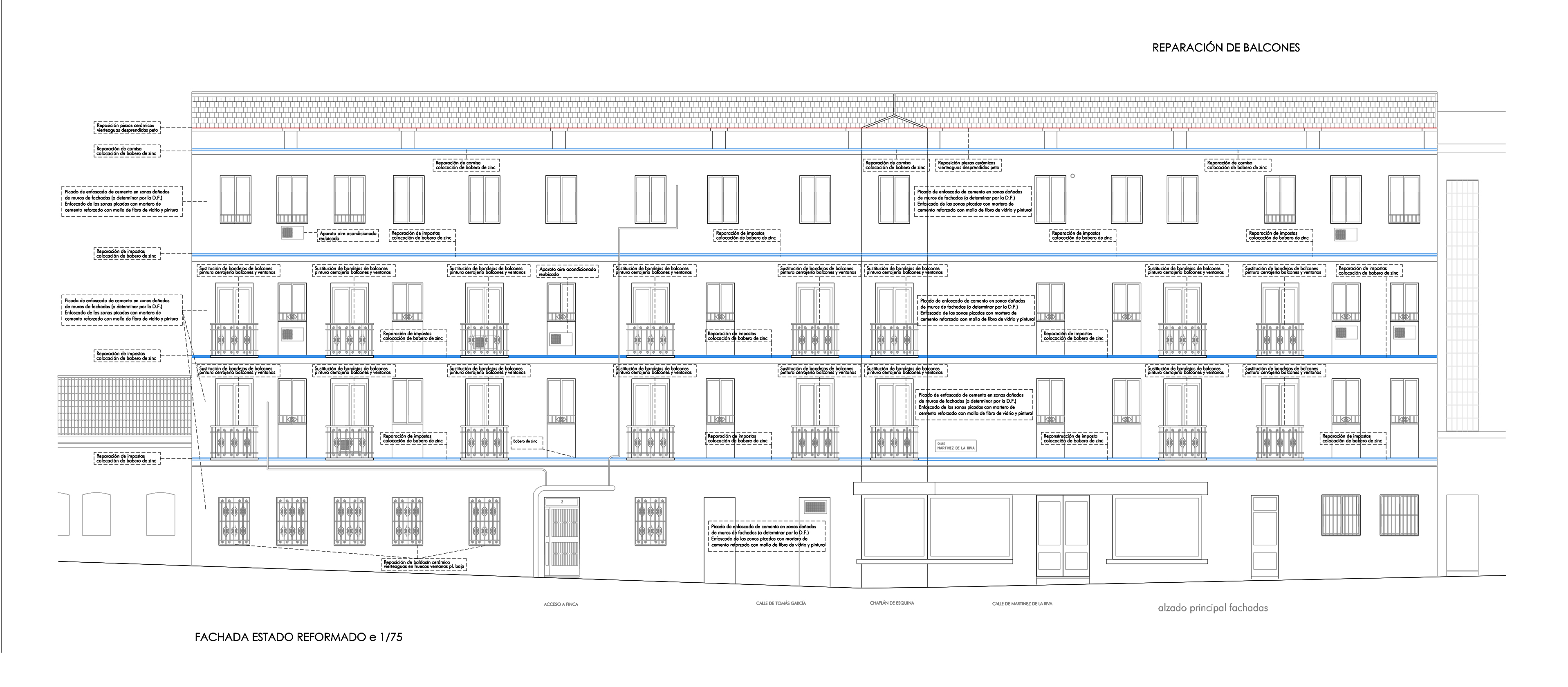
In this rehabilitation, the edges of the cantilevers that form the access corridors to the first, second and third floors will be repaired. It was detected that the metal joists of the corridors show an advanced state of corrosion, but the intention is to rebuild them without removing the corroded joists. It was decided to build a composite floor slab supported by corbels embedded in the load-bearing wall. The slab is assembled on top of the supporting plates and the concrete is poured, embedded in the old joists. Also, fissures on the third floor due to waterproofing problems are resolved.

Location:

Madrid, Spain

Date:

2013-2015

Team:

José Manuel Guerrero Vega
Amalia Ogando Herranz
Ángel García-Fraile Aracil

We use cookies to ensure that we give you the best experience on our website. Click here for more information.