Rehabilitation of a house on Hijas de Jesús street

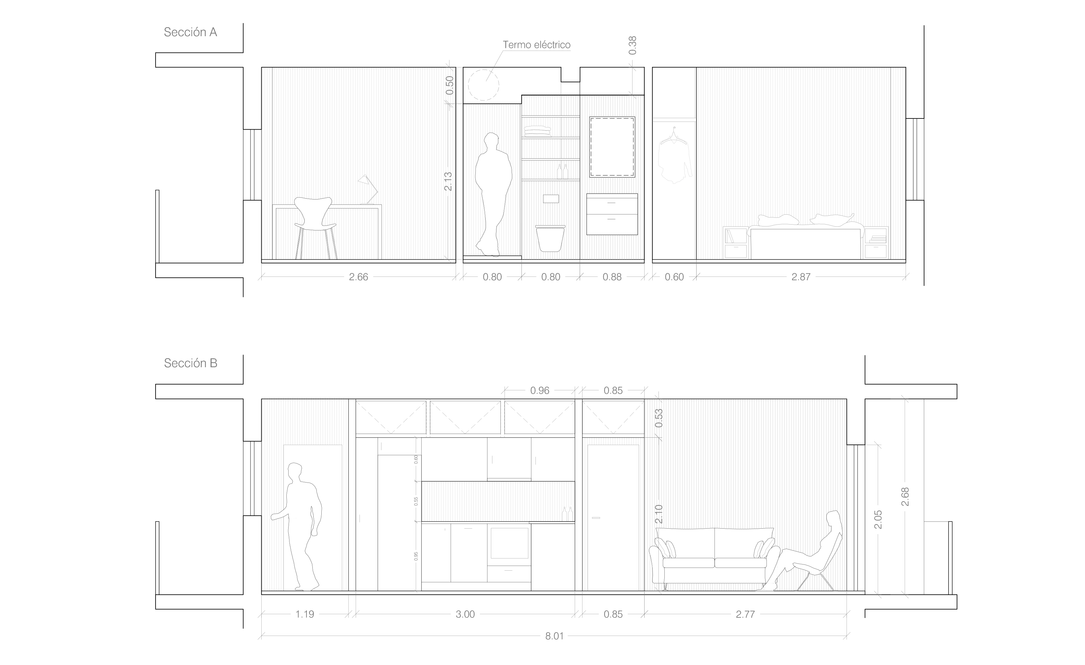
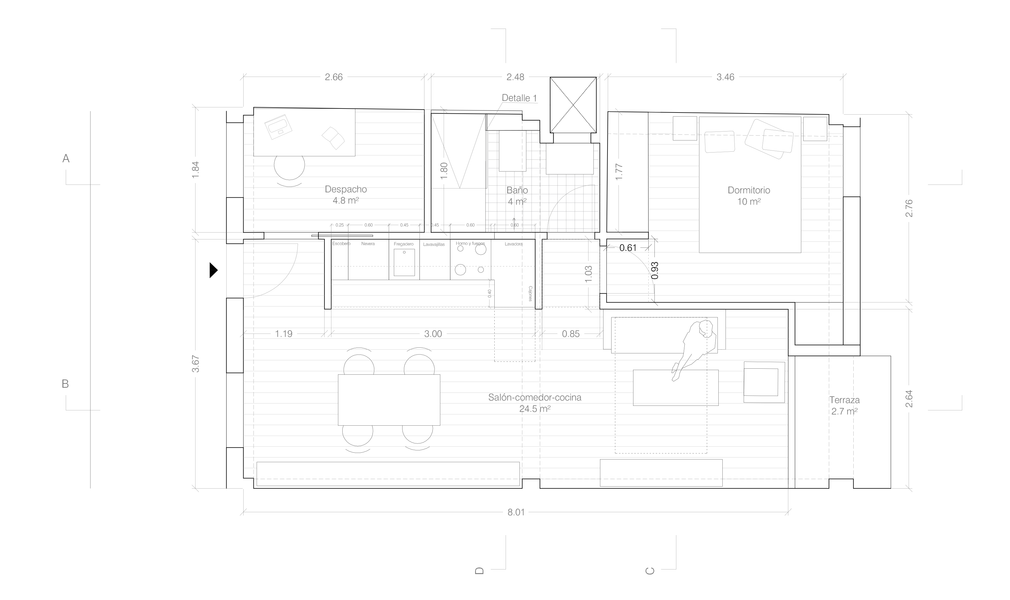
The current house consists of three bedrooms, a living room, a kitchen and a bathroom. The new distribution of the house will have a double bedroom, an office, a bathroom and a living room with integrated kitchen. The remodeling works of the interior of the house entail the demolition and replacement of all the interior partitions and the facilities without altering the structure or the facade. All the existing exterior carpentry are replaced by more efficient ones, maintaining the dimensions of the current openings.

Location:

Madrid, Spain

Date:

2019

Team:

José Manuel Guerrero Vega
Amalia Ogando Herranz
Laura Villasante Guerrero
Alba Delso Jerez

We use cookies to ensure that we give you the best experience on our website. Click here for more information.