House in Robledo de Chavela

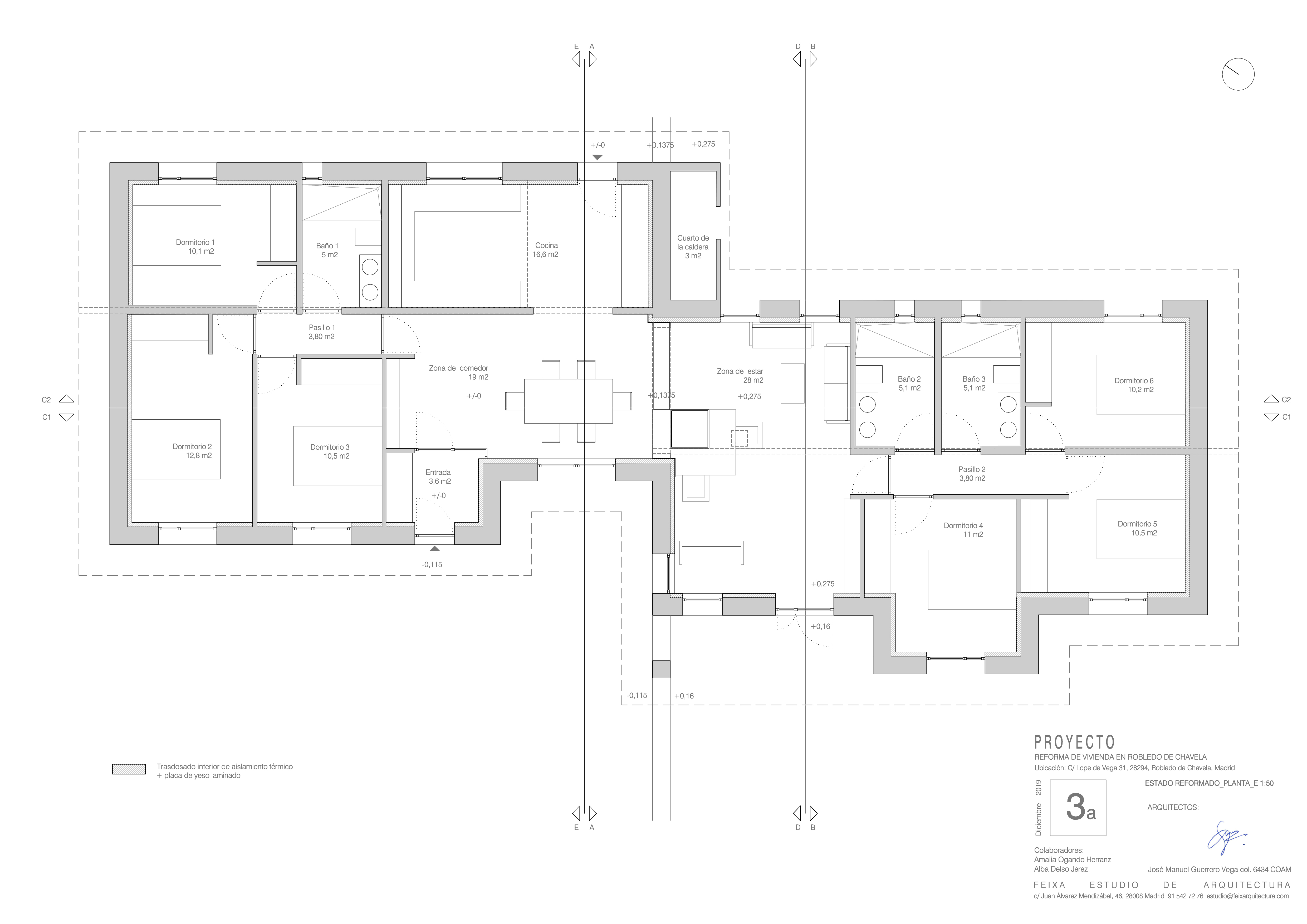
Openings are made on the central load-bearing wall by placing metal piers, those that are visible are protected by fireproofing. The partitions that distribute the current rooms are demolished to rebuild it with waterproof dry partitions. The new distribution of the plant space is built according to the program demanded by the graphic documentation of the project.

Location:

Robledo de Chavela, Spain

Date:

2019

Team:

José Manuel Guerrero Vega
Amalia Ogando Herranz
Laura Villasante Guerrero
Alba Delso Jerez

We use cookies to ensure that we give you the best experience on our website. Click here for more information.