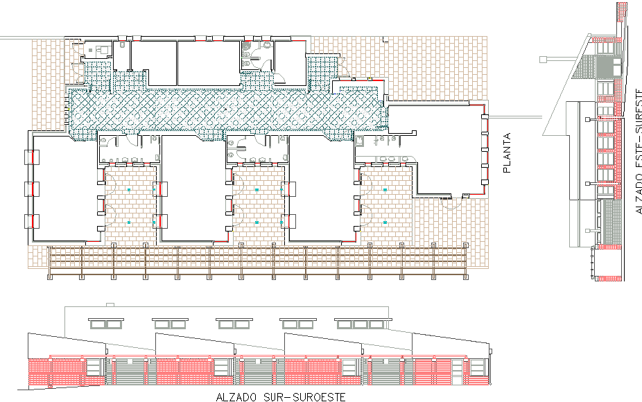
Public school in Becerril de Campos

The Ministry of Education commissioned a project for the construction of a new 3+1 unit school in the municipality of Becerril de Campos. It consists of a small school with three classrooms for infants and one for kindergarten on municipal land located on the edge of the municipality, next to the sports facilities. It was decided to orientate the classrooms to the south and create a large hall to accommodate the children's playground when the weather prevented them from enjoying the courtyard. The layout of the classrooms makes it possible to incorporate courtyards between them to extend the class outdoors when the weather permits. Adjacent to the access street are the administration and teachers' offices.

Location:

Becerril de Campos, Palencia

Date:

1994 - 1995

Team:

José Manuel Guerrero Vega
Carlos Rodríguez Mahou
Amalia Ogando Herranz
Venancio Palmero

We use cookies to ensure that we give you the best experience on our website. Click here for more information.