Jätkäsaari School

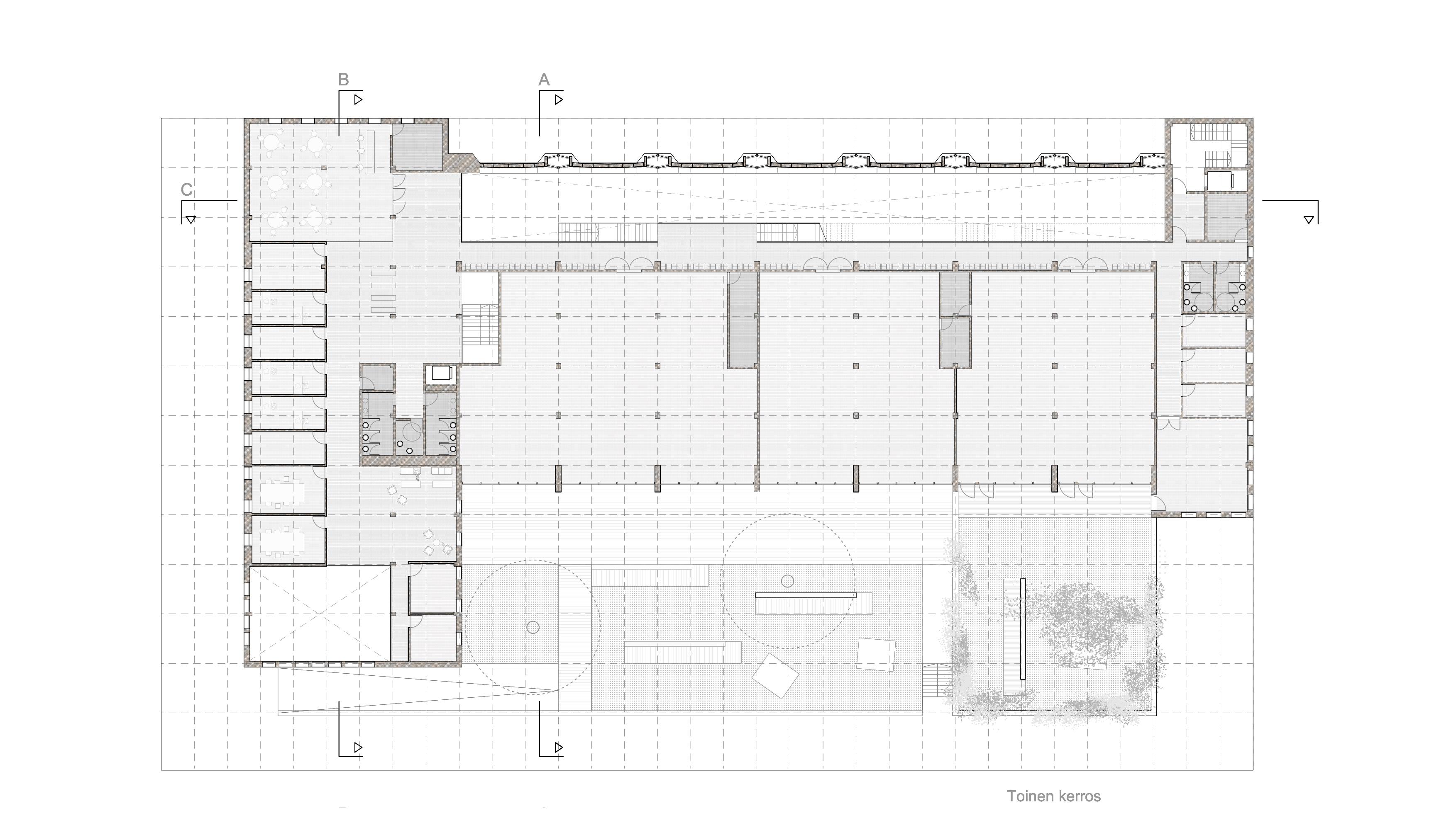
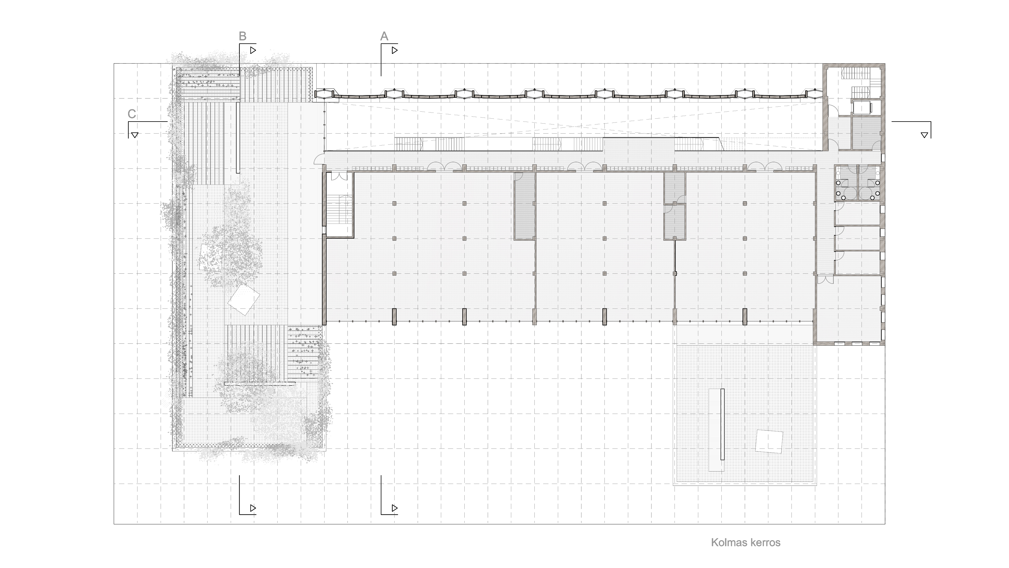
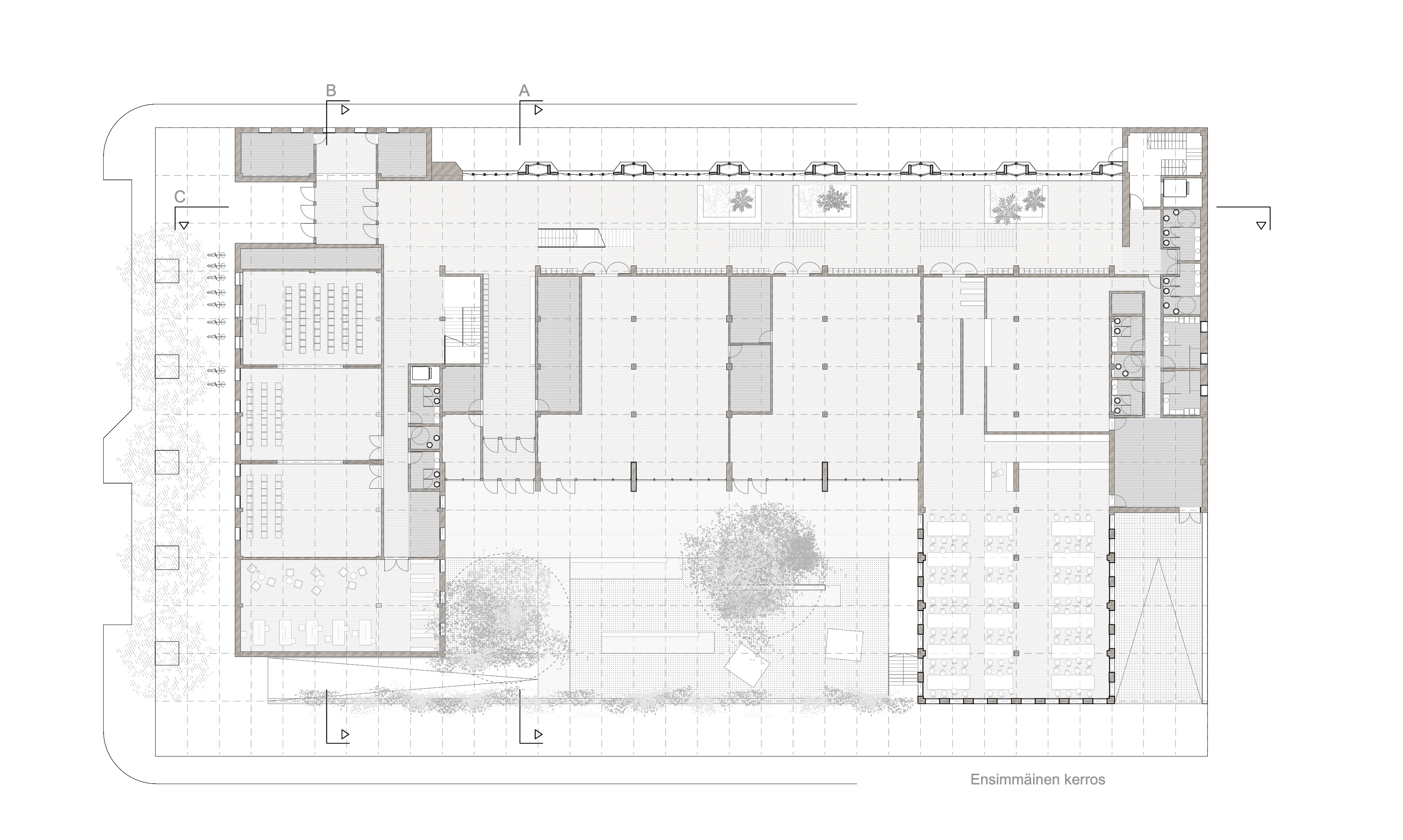
The programme is organised volumetrically with a clear division between teaching, administrative and service areas. The body dedicated to classrooms and workshops volumetrically marks the complex, with its large south-facing windows that bring the maximum amount of light into the classrooms. This separation between the classroom and administrative areas allows the building to be used at times and on days other than school use, as the building is easily sectorised. In addition, the ground floor is flexible, so that, depending on the needs, spaces for different activities can be added, leaving the classrooms out of the area. The circulation flows of the server spaces are independent of the operation of the rest of the building, in order to enhance the flexibility of the use of the building outside school use.

Location:

Helsinki, Finland

Date:

April 2015

Team:

José Manuel Guerrero Vega
Amalia Ogando Herranz
Laura Villasante Guerrero

We use cookies to ensure that we give you the best experience on our website. Click here for more information.